A PROPOS
architecte d'intérieur
Devant le Centre Culturel de Tjibaou en Nouvelle-Calédonie, j'ai pu voir, à l'adolescence, un volume inscrit artistiquement dans la nature, intelligemment dessiné, à la fois robuste par ces courbures de bois, et poétique par sa forme.
A l'intérieur, les espaces mettent en scène des histoires, des objets et la nature.
Un coup de cœur visuel.
Diplômée des Beaux-Arts du Mans en Master Design d'Espace, ma première expérience professionnelle se réalise à Paris, ou se mêlent architecture, design et culture pour une clientèle cosmopolite et exigeante.
J'ai ensuite travaillé une dizaine d'année auprès des peintres décorateurs en Sarthe, puis d'autres corps de métiers se sont ajoutés tels que maçon, charpentier-couvreur, menuisier. Des collaborations très enrichissantes, avec des bibliothèques vivantes de savoir-faire, des artistes du bâtiment.
Ce qui m'anime aujourd'hui, c'est la rencontre et la découverte des clients, par leurs différences.
Puis, leur histoire et leur personnalité qui se révèlent - trouver et maintenir l'équilibre entre le commanditaire, son besoin, son budget, la faisabilité, la planification.
Le cœur de mon travail : créer un projet personnalisé pour construire ce nid, cet espace où le bien-être, le confort et la lumière participent à la vie personnelle ou professionnelle.
C'est avec un climat de confiance que j'aime poser sur une feuille ma passion pour l'architecture intérieure et la décoration, que je nourrit dans les lectures, visites et expositions.


PRESTATIONS
PROJET COMPLET
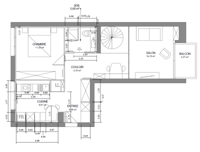
Repenser l'agencement, les circulations, la luminosité dans sa globalité. Plans existants, plans projets, 3D, planches d'ambiances, accompagnement dans les choix de revêtements de sols et muraux, proposition de décoration murale, luminaires, mobilier et accessoires décoratifs, descriptif des travaux, chiffrage, suivi de chantier et remise des clés.




AGENCEMENT SUR MESURE
Entre design et personnalisation. Dessiner l'espace, le rangement, ses fonctionnalités, son adaptation aux besoins spécifiques. Proposition de matériaux qui s'intégreront dans des espaces nouveaux comme anciens.
Un intérieur personnalisé, le bien-être. Décorer nos intérieurs, ils sont faits pour être mis en valeur par les matériaux, la lumière et les éclairages, la scénographie, les objets.
DECORATION




